
| ISOTRA PB | ISOTRA PBI-IS | ISOTRA PB-L |
|---|---|---|
![]() |
![]() |
![]() |
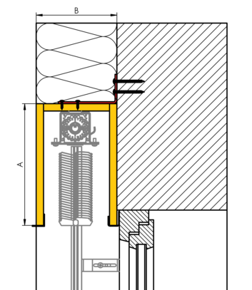
| Rozměr A | Rozměr B | Rozměr C | |||
|---|---|---|---|---|---|
| Min. | Max. | Min. | Max. | Min. | Max. |
| 120 mm | 3200 mm | 150 mm | 300 mm | 60 mm | 200 mm |
| Tloušťka mm | 20 | 30 | 40 | 50 | 60 |
|---|---|---|---|---|---|
| Tepelný odpor RD [(m2.K)/W] | 0,20 | 0,35 | 0,45 | 0,55 | 0,70 |
| Součinitel prostupu tepla RD [(m2.K)/W] | 2,94 | 2,04 | 1,69 | 1,45 | 1,19 |
| Difůzní odpor Sd [m] | 0,16 | 0,24 | 0,32 | 0,40 | 0,48 |